Story
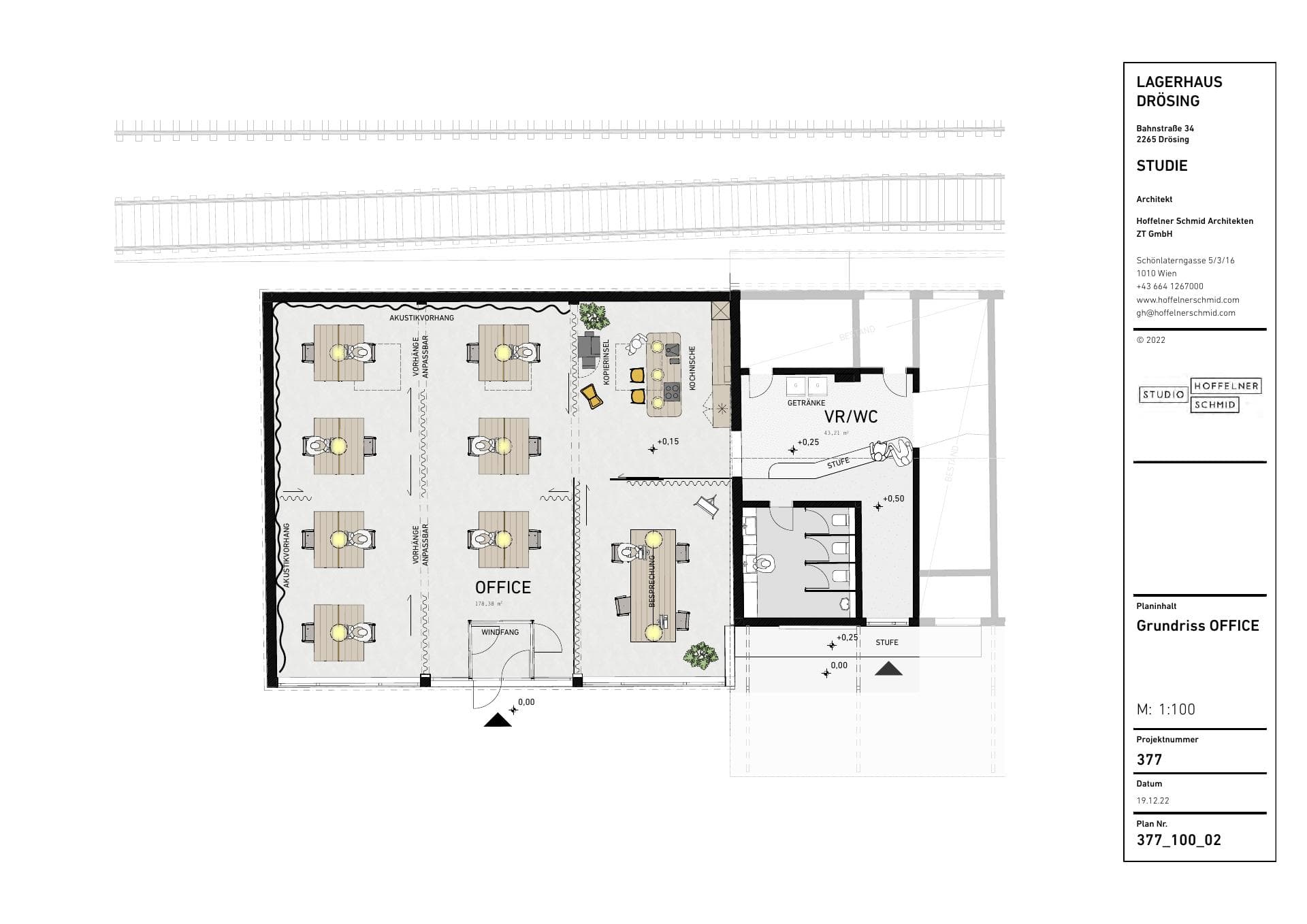
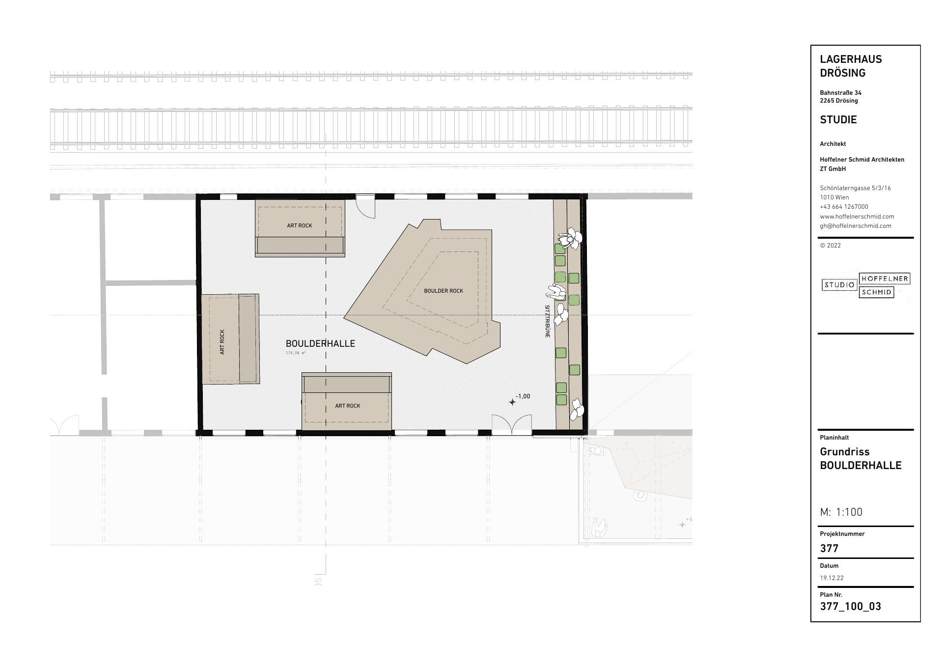
Droeß — engineering plans (221219)
Technical drawings for parcel and envelope decisions — use with legal survey and title.
Preview



Raster previews from the PDF (first pages). Open the file for full resolution and all sheets.
Why this matters
Plan sets translate architect intent into buildable scope. For community investors, they show what was modeled for costs, setbacks, and services — not a promise of final as-built conditions.
How to read it
Look for sheet index, scales, and revision dates. Cross-check boundaries against land registry excerpts. Any redlines after this PDF belong in a change log with issuer sign-off.
On-chain note
The PDF itself stays off-chain (size and privacy). A production deployment can store a commitment hash (e.g. keccak256 of file bytes or IPFS CID) in a registry contract for tamper evidence — this UI is preparatory.