Story
VKP 1169 — Haus E EG Top 1 (2022)
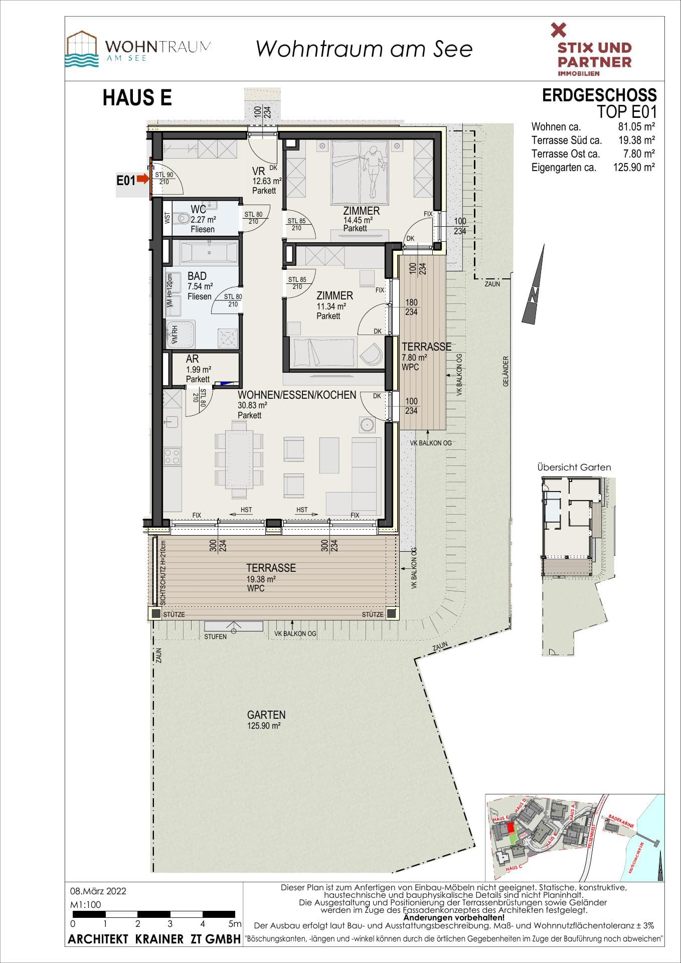
Ground-floor unit plan — Haus E, Top 1.
Preview

Raster previews from the PDF (first pages). Open the file for full resolution and all sheets.
Checklist
Cross-check areas and services with the latest drawings.
Story
Ground-floor unit plan — Haus E, Top 1.
Preview

Raster previews from the PDF (first pages). Open the file for full resolution and all sheets.
Cross-check areas and services with the latest drawings.