Story
VKP 1169 — Haus E EG Top 3 (2023)
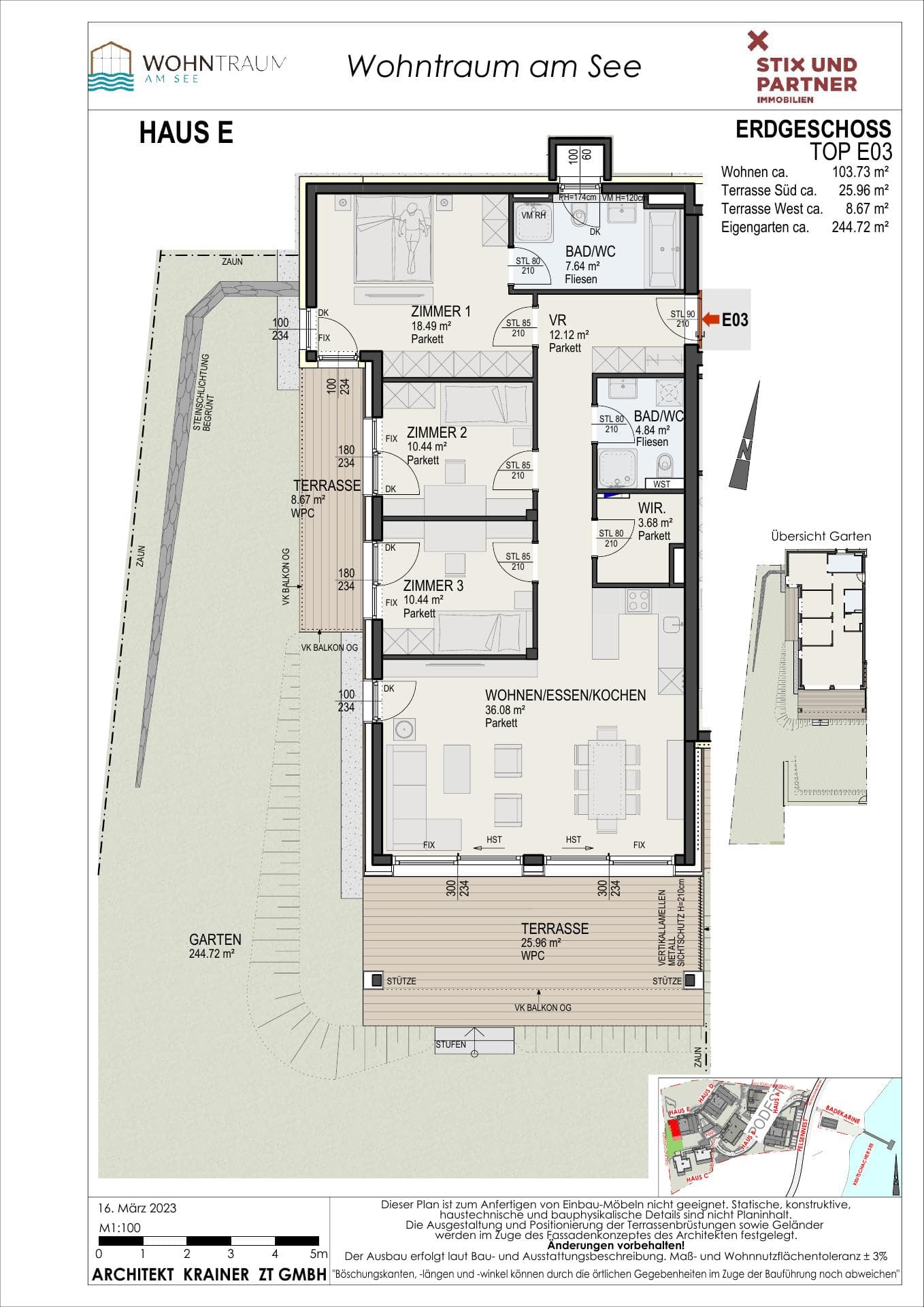
Ground-floor unit plan — Haus E, Top 3.
Preview

Raster previews from the PDF (first pages). Open the file for full resolution and all sheets.
Checklist
Verify revision date against subscription documents.
Story
Ground-floor unit plan — Haus E, Top 3.
Preview

Raster previews from the PDF (first pages). Open the file for full resolution and all sheets.
Verify revision date against subscription documents.