Story
VKP 1169 — Felsennest EG Top 1 (2022)
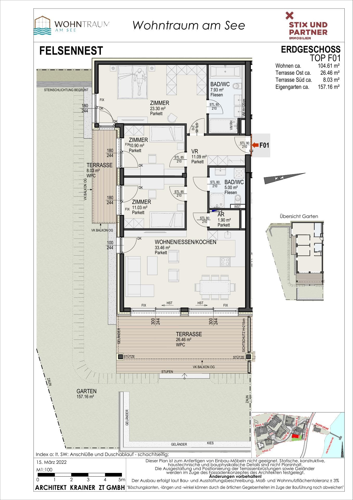
Ground-floor unit plan — Felsennest, Top 1.
Preview

Raster previews from the PDF (first pages). Open the file for full resolution and all sheets.
Checklist
Cross-check areas and services with the latest drawings.